GALLERY
PROPERTY DETAIL
Key Details
Sold Price $375,9902.7%
Property Type Single Family Home
Sub Type Single Family Residence
Listing Status Sold
Purchase Type For Sale
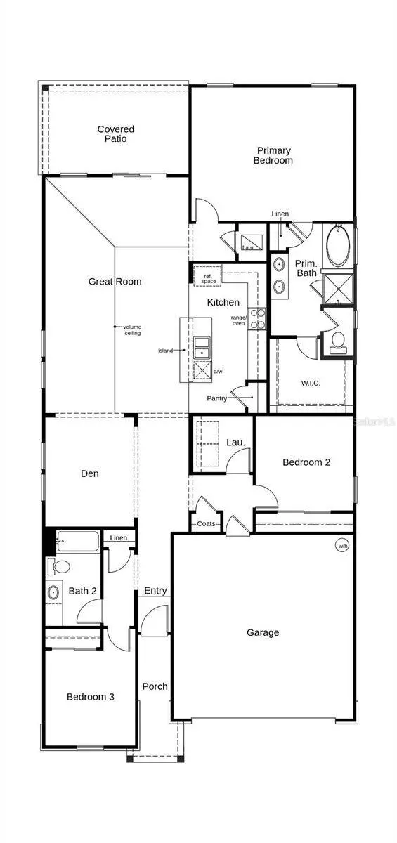
Square Footage 1, 891 sqft
Price per Sqft $198
Subdivision White View Village
MLS Listing ID FC300779
Sold Date 07/19/24
Bedrooms 3
Full Baths 2
Construction Status Completed
HOA Fees $95/qua
HOA Y/N Yes
Annual Recurring Fee 1140.0
Year Built 2024
Lot Size 9,147 Sqft
Acres 0.21
Property Sub-Type Single Family Residence
Source Stellar MLS
Location
State FL
County Flagler
Community White View Village
Area 32164 - Palm Coast
Zoning RESIDENTIA
Building
Lot Description Private
Entry Level One
Foundation Slab
Lot Size Range 0 to less than 1/4
Sewer Public Sewer
Water None, Public
Structure Type Cement Siding,Wood Frame
New Construction true
Construction Status Completed
Interior
Interior Features High Ceilings, Kitchen/Family Room Combo, Open Floorplan, Solid Surface Counters, Solid Wood Cabinets, Split Bedroom, Vaulted Ceiling(s), Walk-In Closet(s)
Heating Central, Electric
Cooling Central Air
Flooring Carpet, Laminate
Fireplace false
Appliance Dishwasher, Disposal, Exhaust Fan, Gas Water Heater, Microwave, Range, Tankless Water Heater
Laundry Inside
Exterior
Exterior Feature Irrigation System, Sliding Doors
Garage Spaces 2.0
Utilities Available BB/HS Internet Available, Cable Available, Electricity Connected, Fiber Optics, Natural Gas Connected, Phone Available, Underground Utilities, Water Connected
View Trees/Woods
Roof Type Shingle
Attached Garage true
Garage true
Private Pool No
Others
Pets Allowed Yes
Senior Community No
Ownership Fee Simple
Monthly Total Fees $95
Membership Fee Required Required
Special Listing Condition None
SIMILAR HOMES FOR SALE
Check for similar Single Family Homes at price around $375,990 in Palm Coast,FL

Pending
$499,000
46 WOODWARD LN, Palm Coast, FL 32164
Listed by ANDREW KALCOUNOS COLDWELL BANKER PREMIER PROPERTIES (HAMMOCK)3 Beds 2 Baths 1,906 SqFt
Pending
$309,900
8 WHITE ROCK PL, Palm Coast, FL 32164
Listed by Tommie Krawiec SEAGATE REAL ESTATE INC3 Beds 2 Baths 1,333 SqFt
Pending
$314,900
4 LLEBERRY PATH, Palm Coast, FL 32164
Listed by Bridgette Hoyt NEW HOME STAR FLORIDA LLC4 Beds 2 Baths 2,052 SqFt
CONTACT





